今回は30代の夫婦が三世代で住むために、一級建築事務所で設計、施工をお願いして建てた部分共有型の二世帯住宅のメリットデメリット、実例、金額をご紹介します。
一級建築士事務所で建てる二世帯住宅はいくらする?

一級建築事務所で二世帯住宅を建てると想像すると、高そうなイメージがつきますよね。
今回ご紹介する二世帯住宅の実例は
そんな現実を実現させた一部共有型の二世帯住宅です。
この30代夫婦の世帯年収は約1000万円とのこと。
35坪の土地に約5200万円で土地代合わせて二世帯住宅の建物を建てたそうです
坪単価にすると、なんと!約148万円!!!
かなり割高なお家ですが、さすが一級建築士事務所が建てたというだけあって
外観は一般的なハウスメーカーなどと違って個性が光る建物に仕上がっていますね。
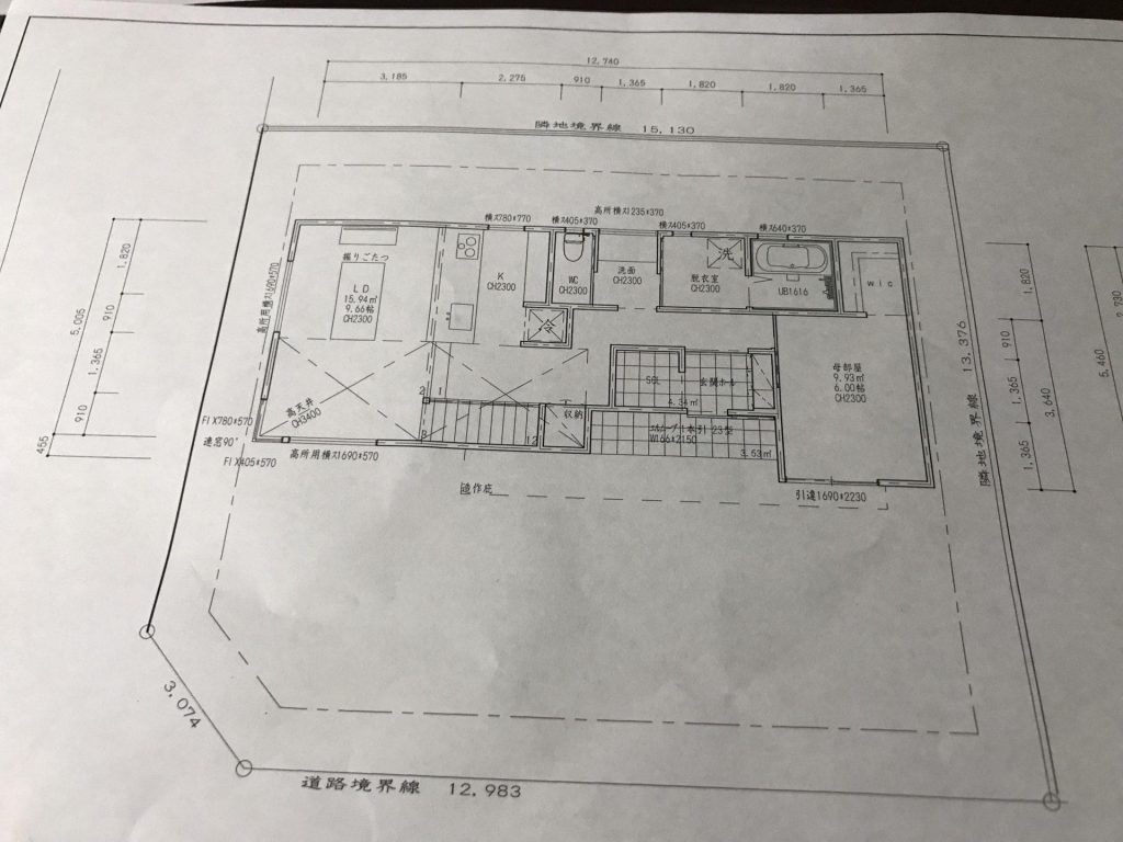
一級建築士事務所で建てた二世帯住宅の間取りの一部をご紹介

1階の親世帯の間取り。
コンパクトな建物ながらも生活空間が快適に過ごせるように工夫された間取りになっていて
リビングは親世帯、子世帯の共有スペースになっています。
建てる段階から掘りごたつを作ったりと、要望を叶えることができる物件になったそうです。
共有型の二世帯住宅を建てた感想
建主さんの率直な共有型の二世帯住宅を建てた感想です
良かった点は、祖母の部屋を7畳+ウォークインクローゼットにして比較的広いスペースを確保出来たこと。廊下を真っ直ぐではなく曲がり角を作ったことでリビングのプライベートが確保できたところ。
庭から祖母の部屋に繋がっているので子供たちが庭で遊んでいる時に祖母に面倒をみててもらうことができるのは、家事をしたいときや手が離せないときにのんびり過ごしている祖母が見守ってくれるのでありがたい存在です。
悪かった点としてはキッチンやお風呂は共用なのですが、
祖母の生活ややり方と子世帯の家族のやり方が違いすぎたので、分けられるところは分けた方がよかったように思いました。
廊下を挟んでリビングと祖母の部屋を分けてプライベート空間を分けたつもりだったのですが、
祖母の部屋がプライベートな空間となりすぎてしまい疎外感や距離感が生まれてしまったように感じているので距離感を保つのは難しいなと感じました。
2階に物干しスペースも作ったが、祖母はほぼ1階にしかいないので使用せず、階段の上り下りが億劫なようでお互いに使いやすい場所に配置すればよかったと感じた。
二世帯にしたことで狭い建坪の中の限られたスペースが潰れてしまい、せっかくの自由設計の家の設計の自由度が狭まってしまった。空間をうまく使った住宅にしたい場合は、二世帯にする場合やりにくいと思います。
建坪が狭い土地ほど、部屋数や生活空間の確保が難しくなるのは仕方がないですよね。
そこに、二世帯分の住環境を整えるという意味ではかなり考えながら家を建てたものの
住んでから色々と考えることも多いようです。
これから狭い土地で二世帯住宅を建てようとしている人にはかなり参考になる事例だなと思います!
1. 30代で共有型二世帯住宅を建てるという選択
30代で共有型の二世帯住宅を一級建築事務所で頼む
という人は
そう多くないかもしれないのですが、
家族のつながりがきちんとできている二世帯間であれば
そう珍しいことでもないはず!
若い世代が二世帯住宅を選ぶ理由とは?
30代で共有型二世帯住宅を建てる世帯が増えています。
その背景には、経済的な理由と家族関係の深まりを重視する価値観の変化が見られます。
- 経済的メリット: 両親と住むことで、住宅ローンや生活費の負担を軽減できる点が大きな理由です。
また、親からの資金援助を受けることで、より良い立地や広い住まいを選べる可能性も広がります。 - 家族のサポート: 共働きの夫婦にとって、
子育てや家事を親世帯と協力して行える環境は大きな魅力です。
一方で、親世帯も老後の安心感を得られるという利点があります。
共有型二世帯住宅の特徴とメリット
共有型二世帯住宅は、玄関やリビング、キッチンを共有する設計が一般的です。これにより、生活スペースを効率よく使えるため、建築コストを抑えることが可能です。
- メリット:
- コスト削減: 設備や建材を共有することで、完全分離型よりも低コストで建築可能。
- 自然な交流: 家族間でのコミュニケーションが取りやすく、子どもと祖父母の関係も深まる。
- 空間効率: スペースを最大限に活用でき、無駄のない間取りが実現。
2. 年収1000万円で実現!共有型二世帯住宅の概要

家族構成と建築プランの詳細
ある30代夫婦の事例では、親世帯(60代夫婦)と子世帯(夫婦と子ども1人)の構成で
共有型二世帯住宅を建築しました。
- 間取り: 玄関は共有し、リビングとキッチンも一部共有。
寝室や個人スペースは完全に分離し、プライバシーを確保。 - 設備: 太陽光発電や全館空調を導入し、エネルギー効率を高めた設計。
防音対策も施され、世帯間のストレスを軽減。
建築にかかった総費用と資金計画の立て方
この事例では、建築費用の総額は約5000万円。内訳は以下の通りです:
- 本体工事費: 約4000万円
- 付帯工事費: 約600万円(外構や地盤改良など)
- 諸費用: 約400万円(設計費や税金など)
資金計画では、親世帯が2000万円を頭金として負担し、
残り3000万円は子世帯が住宅ローンを利用しました
ローン返済額は月10万円程度で、共働き世帯にとって無理のない設定としています。
3. 共有型二世帯住宅の間取りと広さ
延床面積はどれくらい?
この事例の延床面積は約40坪(132㎡)。
共有型二世帯住宅としては一般的な広さで、1階と2階にそれぞれの生活スペースを配置しています。
共有スペースと個別スペースのバランス
- 共有スペース: 玄関、リビング、キッチン。
- 特にリビングは広さを重視し、約20畳を確保。
- 個別スペース: 親世帯と子世帯の寝室や水回りは完全に分離。お互いのプライバシーを保ちながら、生活リズムの違いにも配慮しています。
リビングやキッチンの配置工夫
リビングとキッチンを一体化した「LDK」形式を採用。
開放感を持たせつつ、キッチンの動線を工夫することで、
料理中も家族との会話を楽しめる設計にしています。
また、防音材を使用して、家族間の生活音のストレスを軽減しました。
4. 建築費用の内訳を解説
本体工事費と付帯工事費の割合
- 本体工事費: 全体費用の約80%。主に建物そのものの工事費用で、構造材や断熱材、内装工事などが含まれます。
- 付帯工事費: 約15%。地盤改良や外構工事(駐車場や庭の整備)に使われる費用です。
設備費用とインテリアオプションの詳細
- 設備費用:
- 全館空調システム: 約200万円
- 太陽光発電: 約150万円
- 防音対策: 約100万円
- インテリアオプション:
- 高級フローリングやシステムキッチンの導入に約300万円。
地盤改良や外構工事にかかった費用
地盤改良には約100万円、外構工事には約200万円が費やされました。
駐車スペース2台分や庭の設計も含まれています。
30代で二世帯住宅を建てた人のリアルな声

二世帯住宅を建てるという選択は、経済的な利点や家族のサポート体制を強化する一方で、
生活の調整やプライバシーの問題が生じることもあります。
家族間のコミュニケーションで気をつけたポイント
- 定期的な話し合いの場を設ける
建築前だけでなく、暮らし始めてからも、
共有スペースや家事分担に関する話し合いを定期的に行うことが大切です。
「定期的に食事会をして、小さな不満でも話し合える機会を設けています。」
という声が多く聞かれます。 - 干渉しすぎない距離感の確保
「親世帯が頻繁に子世帯の部屋に来ることがあって、少し距離感がほしいと感じました。」
という意見も。
訪問や交流の頻度を話し合いで決めることが重要です。
建築後の満足度と「ここはこうしておけば良かった」
- 満足度の高いポイント
- 「親世帯と子どもの面倒を見てもらえる環境ができて、育児の負担が減りました。」
- 「家事や食事の共有で経済的な負担が軽減されました。」
- 改善すべき点
- 「プライバシーを重視して完全分離型にしたが、もっとコミュニケーションがとれる設計にすれば良かった。」
- 「防音対策が不十分で、生活音が気になりました。」
これらの声から、事前の計画段階で細部まで検討し、
住んでからのイメージを具体化することの重要性がわかります。
共有型二世帯住宅を建てる際の注意
共有型二世帯住宅を建てる際には、プライバシーの確保や費用の分担など、
事前にしっかりと計画しておくべき点がいくつかあります。
これらを適切に整理することで、トラブルの少ない快適な生活を実現できます。
プライバシーの確保と共有スペースの使い方
- 共有スペースのルール作り
リビングやキッチンなどの共有スペースについて、
使う時間帯や片付けのルールを明確にすることが重要です。- 「朝食の時間帯が重なると、キッチンが混雑してストレスでした。ルールを決めるべきでした。」という声も。
- プライバシーを守る設計の工夫
- 個人スペースは階層や間取りでしっかり分ける。
- 防音材を活用し、生活音のストレスを軽減する。
世帯間で費用を分担する際のポイント
- 建築費用の分担
家を建てる際には、親世帯と子世帯で建築費用をどのように分担するかを明確に決めておく必要があります。- 親世帯が頭金を負担し、子世帯が住宅ローンを担当するケースが多い。
- 光熱費や修繕費の分担
共有部分の光熱費や将来の修繕費用についても、事前にルールを作っておくことが重要です。
長期的な維持費とリフォーム費用の見通し
- 維持費の計画
二世帯住宅は広さや設備が充実している分、光熱費や維持費が高くなることがあります。
将来の負担を見越した計画が必要です。 - リフォーム費用の見通し
- 「将来のリフォーム費用を考慮し、メンテナンスがしやすい素材を選ぶべきでした。」という意見が多く聞かれます。
- 特に親世帯が高齢になった際のバリアフリー改修や、世帯の独立後の間取り変更に備えると安心です。
まとめ:計画を万全にし、快適な二世帯住宅を実現する
共有型二世帯住宅は、家族間の助け合いや経済的な負担軽減など多くのメリットがありますが、
プライバシーや費用分担などの課題にも注意が必要です。
事前にしっかり話し合い、設計やルールを整備することで、
家族全員が満足できる住まいを実現しましょう。
